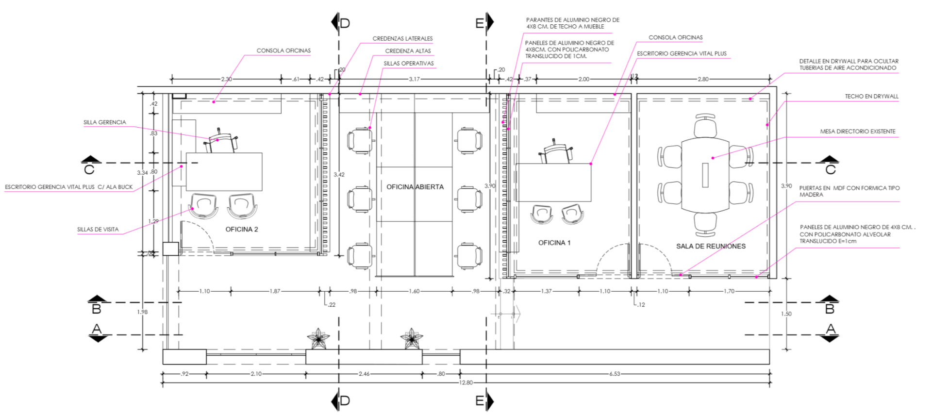
#Oficina

JRC

Diseño y Ejecucion

CLIENTE

JRC Ingenieros

FECHA

2017

UBICACIÓN

Lima-Peru

DISEÑADOR RESPONSABLE

Carlos Manuel G. Oneto

EQUIPO

Oneto/Sousa Arquitectura Interior SAC

IMPLEMENTACIÓN

Oneto/Sousa Arquitectura Interior SAC

FOTOGRAFO

---




Esquema

Proyectos relacionados