#Restaurante
LaCriolla deBoris
Diseño
CLIENTE
Familia Delgado
FECHA
Abril 2017
UBICACION
Mercado Risso N2 Lince Lima-Peru
DISEÑADOR RESPONSABLE
Carlos Manuel G. Oneto
EQUIPO
Alejandro Anderson, Sandy Nuñez
IMPLEMENTACION
Oneto/Sousa Arquitectura Interior SAC
FOTOGRAFO
Jose Andres Maratuech
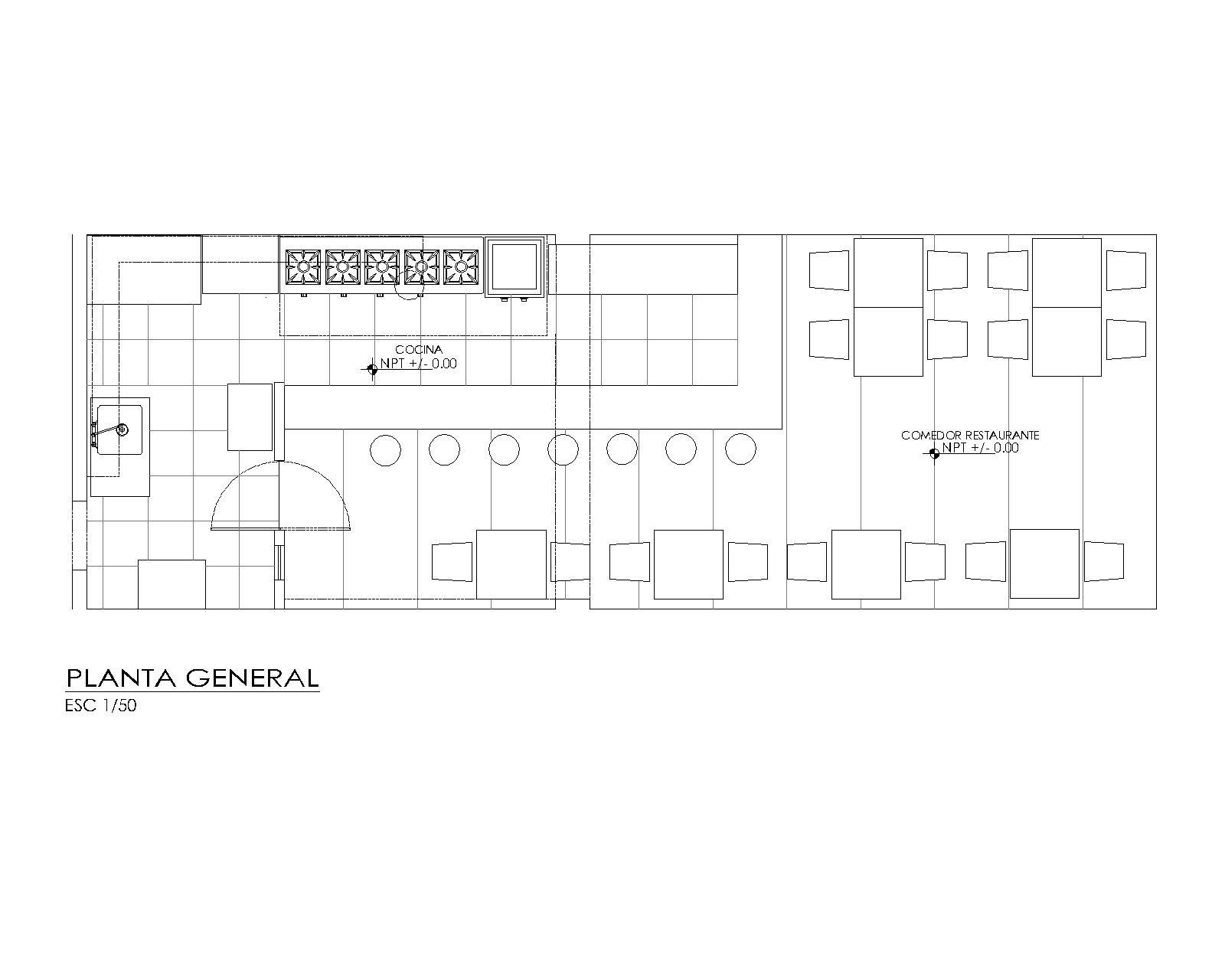
En este proyecto pudimos desarrollar nuestras ideas al 100%, el cliente nos dio libertad absoluta para diseñar su nuevo restaurante en un espacio de 50mt2. nos encargaron el diseño del local, como la conceptualización del nombre, logo y diseño de la carta.
Nos guiamos de la ubicación ya que el local esta dentro de un mercado. y esto lo hace único. planteamos crear una atmósfera agradable y funcional utilizando materiales clásicos como el Marmol, fierro y terracota.
Este proyecto cumple con nuestra visión de mejorar la calidad de vida con nuestros diseños ya que ha creado un nuevo horizonte al mercado. Al ser un restaurante de comida criolla dentro de un mercado típico limeño, decidimos buscar materiales que nos lleven a trasladen sensaciones de calidez y al mismo tiempo que sean un poco industriales y de ciudad. optamos por Marmol blanco, cerámicas importadas, ladrillo recocho en un patron singular representando a la costa, y latón galvanizado.











