#Tienda
Fancy Pets
Diseño y Ejecución de Obra
CLIENTE
Fancy Pets
FECHA
2023
UBICACION
Miraflores, lima -Peru
DISEÑADOR RESPONSABLE
Carlos Manuel Oneto
EQUIPO
Oneto Estudio
IMPLEMENTACION
Oneto Estudio
FOTOGRAFO
Carlos Manuel Oneto
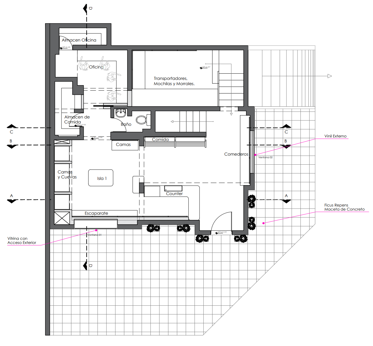
"Fancy Pets" es un emporio de elegancia y sofisticación para nuestros compañeros peludos. Desde el exterior, el edificio evoca un aura de modernidad y frescura, combinando tonos pasteles con texturas geométricas. Las vibrantes flores fucsia que brotan del techo aportan vida y color al paisaje urbano, creando una invitación visual para los transeúntes a descubrir sus tesoros interiores.
Al ingresar, uno es inmediatamente recibido por un espacio amplio y luminoso, donde la paleta de colores pastel sigue predominando, creando un ambiente relajante. El techo, adornado con un conjunto de esferas luminosas, dota al espacio de una iluminación suave y uniforme. Cada detalle, desde el mobiliario de madera hasta los accesorios cuidadosamente dispuestos, refleja un compromiso con la calidad y el diseño. Los estantes están repletos de juguetes coloridos, ropa y otros accesorios, mientras que las zonas de exhibición destacan productos selectos, creando puntos focales para la exploración.
El diseño arquitectónico de "Fancy Pets", con sus arcos y espacios abiertos, invita a los visitantes a pasear, descubrir y mimar a sus mascotas con productos de primera línea. Es evidente que cada elección aquí se hizo pensando tanto en el bienestar de las mascotas como en el gusto estético de sus dueños.










