#Tienda
Olympikus
Diseño y Ejecución de Obra
CLIENTE
Calzados Azaleia Peru SAC
FECHA
Junio 2017
UBICACION
Mega plaza Independencia Lima-Peru
DISEÑADOR RESPONSABLE
Carlos Manuel G. Oneto
EQUIPO
Alejandro Anderson
IMPLEMENTACIÓN
Oneto/Sousa Arquitectura Interior SAC
FOTOGRAFO
-----
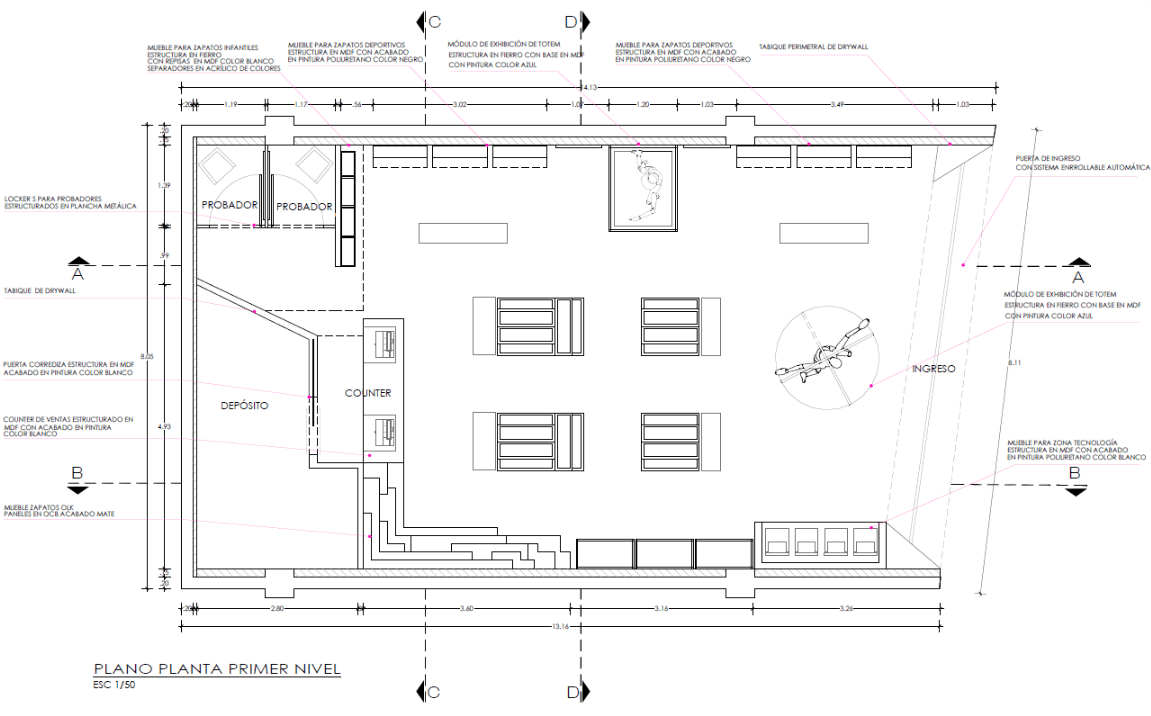
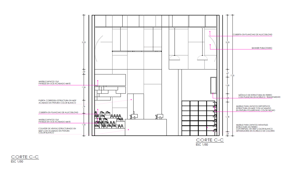
Para este proyecto tuvimos que desarrollar el concepto y el Look and feel para la tienda de la marca Olympikus. tuvimos el desafió de desarrollar el planteamiento de la primera tienda modelo para luego ser replicada en Trujillo y próximamente en 3 locales mas. consideramos que una tienda deportiva tenia que mostrar Tecnología, innovación y frescura, trasladamos esas palabras a materiales y equipos como el cemento expuesto, televisores comerciales y escaparates.














