#Sangucheria
Tentacuchi
Tentacuchi sangucheria
CLIENTE
Tentacuchi
FECHA
2023
UBICACION
Jesus Maria , Lima-Peru
DISEÑADOR RESPONSABLE
Carlos Manuel Oneto
EQUIPO
Oneto Estudio
IMPLEMENTACION
Oneto Estudio
FOTOGRAFO
Carlos Manuel Oneto
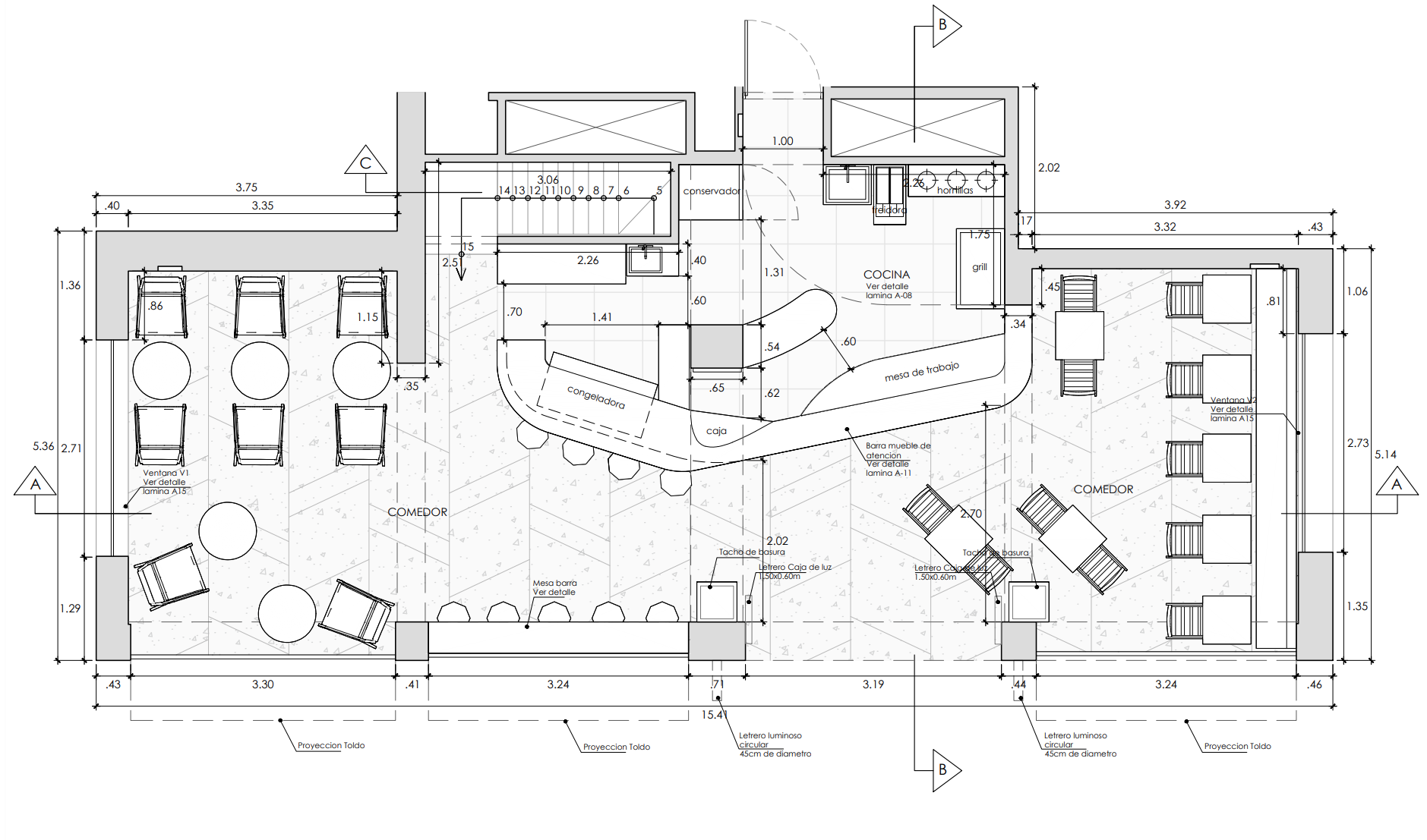
El local de “Tentacuchi” es una interpretación contemporánea de la sanguchería limeña, donde la tradición se encuentra con una estética limpia y moderna. Ubicado en la planta baja de un edificio de oficinas de los años 60 en el distrito de Jesus Maria, el proyecto respeta su carácter original conservando la fachada de mármol y replanteando el interior sobre un piso de terrazo que dialoga con la materialidad de la época.
El espacio se organiza alrededor de una barra central en forma de boomerang, que funciona como corazón operativo y punto de encuentro. Esta pieza integra una cocina abierta, haciendo visible el proceso de preparación y reforzando la transparencia del concepto. Revestida en cerámicos rectangulares colocados verticalmente —un guiño a la trama ortogonal propia de la arquitectura moderna— la barra se extiende como un zócalo continuo que acompaña el recorrido del cliente y se proyecta hacia la calle mediante mamparas con vinil amarillo translúcido, consolidando la identidad del lugar.
El comedor se resuelve con bancas mostaza, sillas beige y mesas de madera clara, generando un ambiente cálido y directo que complementa la propuesta gastronómica. La paleta de materiales y colores mantiene un equilibrio entre lo popular y lo contemporáneo, reinterpretando la esencia de la sanguchería limeña desde un lenguaje actual.









